PAGE 1
PAGE 2
Preliminary Plans Set

DIY
1500W Electric Kart Preliminary Drawing - Password: kart |
Normally I only make plans available on
the site once I have built and tested a design for myself. I've made
an exception to this for the 1500W kart design and have made up a
set of engineering drawing for the kart which cover the main
mechanical components and structure of the design. Due to time
pressure of other projects it might be some time before I get around
to building the kart and rather than just sit on the design I
thought it might be better to make available a PRELIMINARY set of
drawings for interested builders. I've bundled the set as a FREE
bonus with the full Paid-For plans set available from the
Plans Order page.
These drawings are typical of those I
would use for a prototype vehicle build - although I have tidied
this set up a bit and added a number of important notes. The main
thing to remember is that the design is untested so if you use the
information do so with care and independently check the safety and
function of your build.
So what's in the preliminary drawing
set?
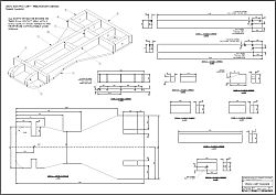
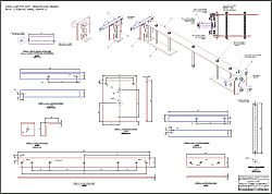
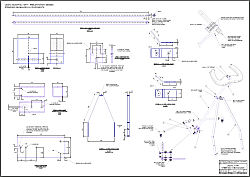
There are 6 A2 sized pdf sheets which
cover the main elements of the kart. As well as the overview drawing
shown above they cover -

Timber Chassis |

Front Wheel Supports |

Steering Column & Supports |

Rear
Electric Drive Components |
The drawings identify the parts for the
main mechanical structures and components. They do not cover safety
covers, seat & seat belts, foot pedals or electrical circuitry. For
guidance on a suitable electrical circuit refer to the detailed
drawings for either the 1300W Yard Tractor or 1000W Voiturette. The
electrical system will be similar with the main difference of using
3 x 12V batteries wired in series to give the 36V working voltage.
I hope the drawings will be
of use - if you find any errors or see how the design can be improved
let me know. Remember they are bundled as a FREE bonus with the plans
currently available from the Plans Order
page.
© This site is
copyrighted, If you'd like more information or have any
comments please contact me at
READ THE SAFETY
GUIDANCE HERE
|